Klozet

Klozet tamiri ve klozet montajı ile klozet tıkanıklık açma konusunda detaylar için bizi arayabilir, bilgi almak için ulaşabilirsiniz.

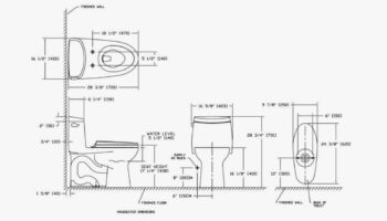
Standart Klozet Ölçüleri

Standart Klozet Ölçüleri Evlerde, iş yerlerinde ve kamu binalarında kullanılan klozetlerin ölçüleri belli standartlara bağlı olarak üretilir. Bu ölçüler, hem…

Devamını Oku »

Klozet Yüksekliği Nasıl Ayarlanır?

Klozet Yüksekliği Nasıl Ayarlanır? Klozet yüksekliği, günlük yaşamda konfor ve kullanım kolaylığı açısından hayati öneme sahiptir. Yanlış yükseklik, hem diz…

Devamını Oku »

Klozet Tıkanıklığı: Su Tesisatçısı

Klozet Tıkanıklığı: Su Tesisatçısı Su tesisatçısı ile ilgili talepleriniz ve klozet tıkanıklığı ile ilgili destek taleplerinizi iletmek için bizi arayabilir,…

Devamını Oku »

Tesisatçı | © 2025 | - Acil Tesisatçı - İstanbul Tesisatçı - Klozet Tamiri - Su Kaçak Tespiti - Su Tesisatçı - Su Tesisat Hizmetleri - Tıkanıklık Açma - Yeni Tesisat Hizmetleri